ブリーズガーデン篠栗中央 ー全2区画ー
福岡県糟屋郡篠栗町中央

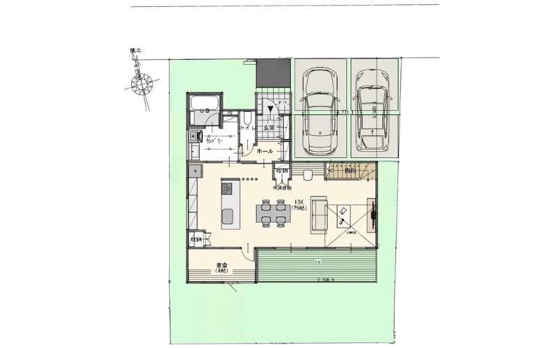
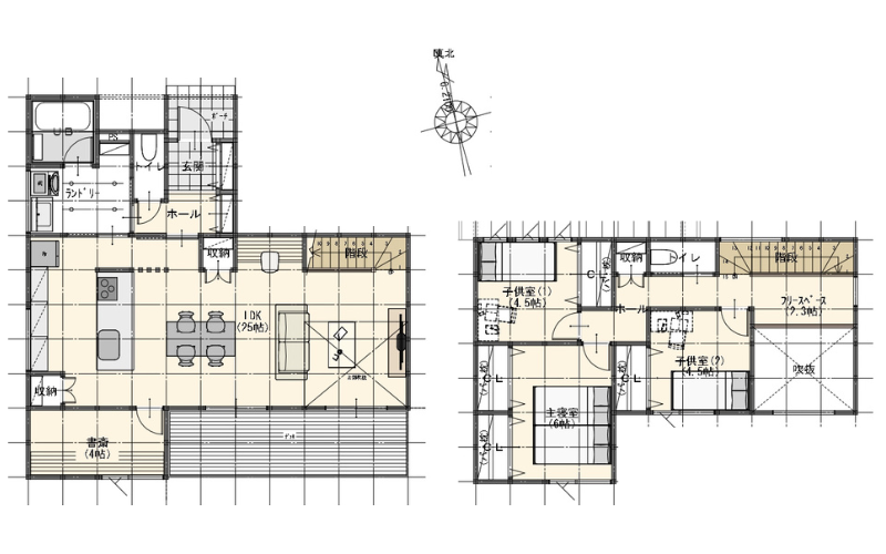
【参考プランあり】残り1区画|JR篠栗駅まで徒歩約10分、小中学校までも徒歩圏内の好立地。
✅️ JR篠栗線(福北ゆたか線)利用 ✅️ 博多駅まで最短約20分 ※快速利用、日中平常時の所要時間
都市近郊の便利さが手に入る篠栗中央。暮らしの利便と、緑を感じる穏やかさを両立できるロケーションです。
物件情報
交通
JR篠栗線「篠栗」駅まで徒歩10分(約800m)
総区画数
2区画
土地価格
2,500万円
土地面積
181.37㎡(54.86坪)
地目
宅地
都市計画
市街化区域
用途地域
商業地域
建蔽率
80%
容積率
400%
取引条件
売主(建築条件付宅地分譲)
現況
更地
接道状況
公道 42条1項1号
設備
水道:公営水道 ・下水道:公営下水 ・ガス:プロパン ・電気:九州電力
上水道(20㎜ )下水道(150㎜ )引込あり ※土地ご購入時に別途諸費用が発生いたします。 (水道加入金13㎜ 16,500円(7以下)、20㎜ 275,000円(8~15)、区費 700円/月、隣組費あり)
販売物件
| 区画番号 | 敷地面積 | 坪 数 | 販売価格 | 状況 |
|---|---|---|---|---|
| A号地 | 181.37㎡ | 54.86坪 | 2,500万円 | 販売中 |
| B号地 | - | - | - | 済 |
周辺環境

JR篠栗駅
徒歩約10分(約800m)

篠栗町立篠栗小学校
徒歩約4分(約270m)

篠栗町立篠栗中学校
徒歩約7分(約400m)

篠栗町役場
徒歩約10分(約600m)

マルキョウ篠栗店
徒歩約14分(約1,000m)

医療法人井上会篠栗病院
徒歩約15分(約1,100m)
アクセスマップ
福岡県糟屋郡篠栗町中央3丁目14-5089

会員登録
イベントや見学会などのお得な情報や、他ではなかなか見られない会員様限定の間取りが見放題!
会員登録して、家づくりに役立つコンテンツを楽しもう。

















